Devis Sai Nivas By Devi Flat Promoters Chennai Pvt Ltd : Korattur Chennai. Near Kings Matriculation Higher Secondary School
Devis Sai Nivas
By Devi Flat Promoters Chennai Pvt Ltd
Location : Korattur Chennai.
Near Kings Matriculation Higher Secondary School
PRICE : 51.89L
Price does not include taxes, registration and other applicable charges (e.g. car parking or other amenities).
5999+ /SqFt
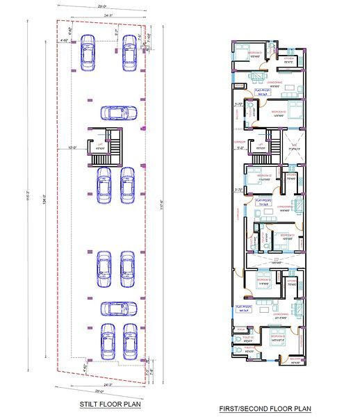
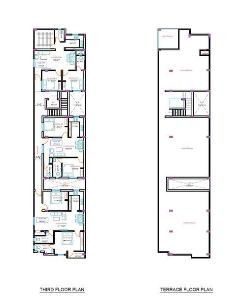
Units Available: 2 BHK Apartments/Flats
Possession: Ready To Move



Legal Information of Devis Sai Nivas
Completion Certificate--Available
Approval Authority--No Info
Occupancy Certificate--Available
RERA Registration ID--TN/29/BUILDING/0128/2022
Commencement Certificate--Available
Amenities of Devis Sai Nivas
Basic Amenities
- Lift
- Car Parking
Convenience Amenities
- CCTV
Overview Of Devis Sai Nivas
Located at Korattur, Chennai, Devi Sai Nivas is inspiring in design, stirring in luxury and enveloped by verdant surroundings. Devi Sai Nivas goal is to deliver developments that are finely crafted, and where the quality of finish shine through in every development, from inception to completion. Devi Sai Nivas is an ultimate reflection of the urban chic lifestyle. The project hosts in its lap 9 exclusively designed Apartments, each being an epitome of elegance and simplicity.
Builder Details
About Devi Flat Promoters Chennai Pvt Ltd
Devi Flat Promoters Chennai Pvt Ltd5 Live Projects
Devi Builders a committed team of highly experienced engineers with an established track record of more than 23 years. This is one of the biggest factors contributing towards the present standing of DEVI as one of the most trusted and preferred builders and developers of residential buildings 'WHO DELIVER WHAT THEY COMMIT'. Having a very long list of satisfied customers. DEVI has an unblemished record of handing over all their projects before the committed dates and to the entire satisfaction of their valued customers. One aspect that highlights the Devi Builders distinction is its focus on rigid quality and time control, without going into unnecessary frills. The builders always strive to provide optimal specifications thereby adding more value and cutting cost for the benefit of the customers.


































































































































































































































































































































































































































































